























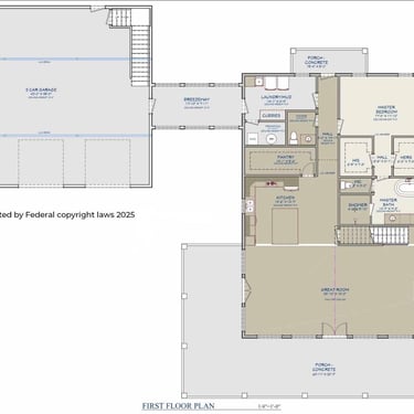
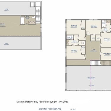
5 BEDROOM MOUNTAIN BARNDOMINIUM
This plan puts a new twist with a stunning 3-car garage the compliments the beautiful exterior and wraparound porch of the home. The great room boast large windows on the first floor to let in plenty of natural light, and the master suite is a dream with his and her walk-in closets. There is plenty of space to fit friends and family and has a theater room that’s sure to keep everyone entertained.








